Описание котла
Водогрейный котел КВа-0,7 – это агрегат, использующийся для отопления и горячего водоснабжения жилых, административных и производственных зданий. Котел работает автоматически, топливоподача и золоудаление автоматизировано. В качестве топлива используется природный газ, также в зависимости от горелки можно использовать и другие виды топлива. Котлы на газе рассчитаны на поддержание температуры нагрева жидкости от 95 до 110 °С. Устанавливается в газовые котельные.
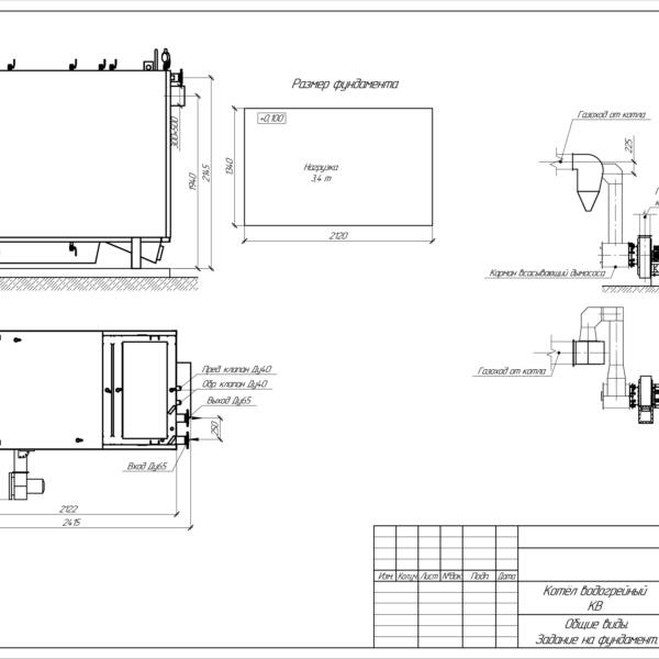
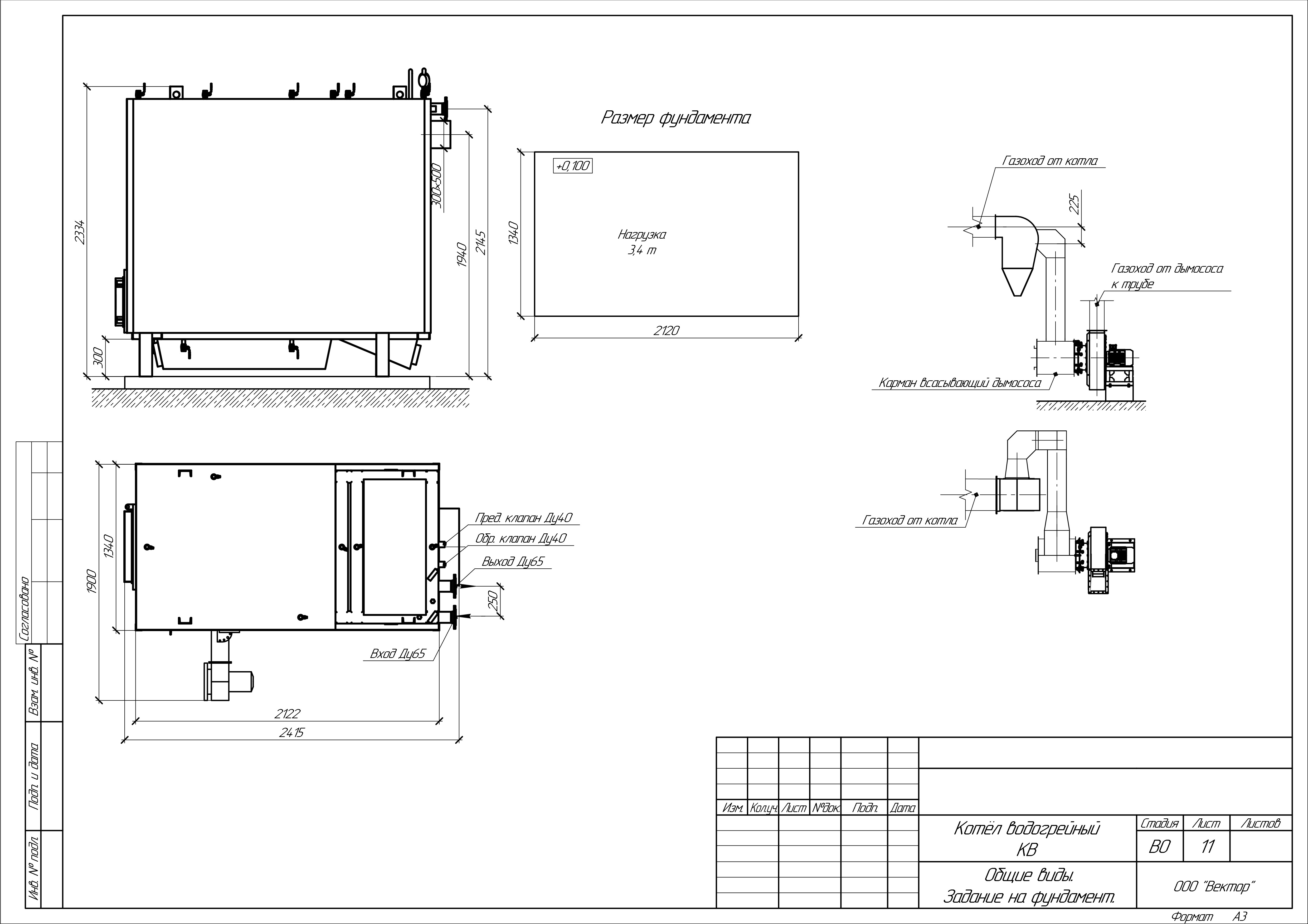
Конструкция газотопливного котла КВа состоит из сварной трубной системы, так называемого блока котла и газоплотной топочной камеры. Котел мощностью 0,7 МВт (700 кВт) покрыт окрашенным металлическим корпусом, который защищает от коррозии и механических повреждений. Специальные прочные панели обеспечивают защиту от утечки. Газоплотные и негазоплотные части котельного блока, чтобы сократить теплопотери, обшиты теплоизоляционным материалом: плитами ПТЭ и войлоком.
Установка водяного котла КВа-0,7 осуществляется на фундамент и требует закрепления специальными болтами. Габаритные размеры по длине, ширине и высоте: 2,415х1,35х2,35 м. Отапливаемая площадь достигает – 7000 м². Агрегат компактен, безопасен и прост в эксплуатации, имеет высокий урокень КПД, нет необходимости в водоподготовке. Водотрубный котел с горелкой не требует постоянного контроля оператора — кочегара. Расход газа небольшой – 82 кг/ч. Сбоку котла монтируется дверка для обслуживания топочной камеры.
При должном соблюдении правил использования, а это своевременная очистка топки от нагара, можно забыть о поломках и снижении производительности отопительного котла КВа, что дает срок службы не менее 10 лет.
Более подробную информацию Вы можете получить у наших специалистов. Чтобы купить отопительный водогрейный газовый котел КВа-0,7 под горелку мощностью 700 кВт (0,7 МВт), достаточно позвонить нам либо оставить заявку и мы обязательно с Вами свяжемся.

